Wattignies
Paris 12 (75)
Restructuration d'un appartement moderne
Maître d’ouvrage : Privé
Mission : Restructuration complète d'un appartement moderne
Surface : 54 m²
Phase : Livré
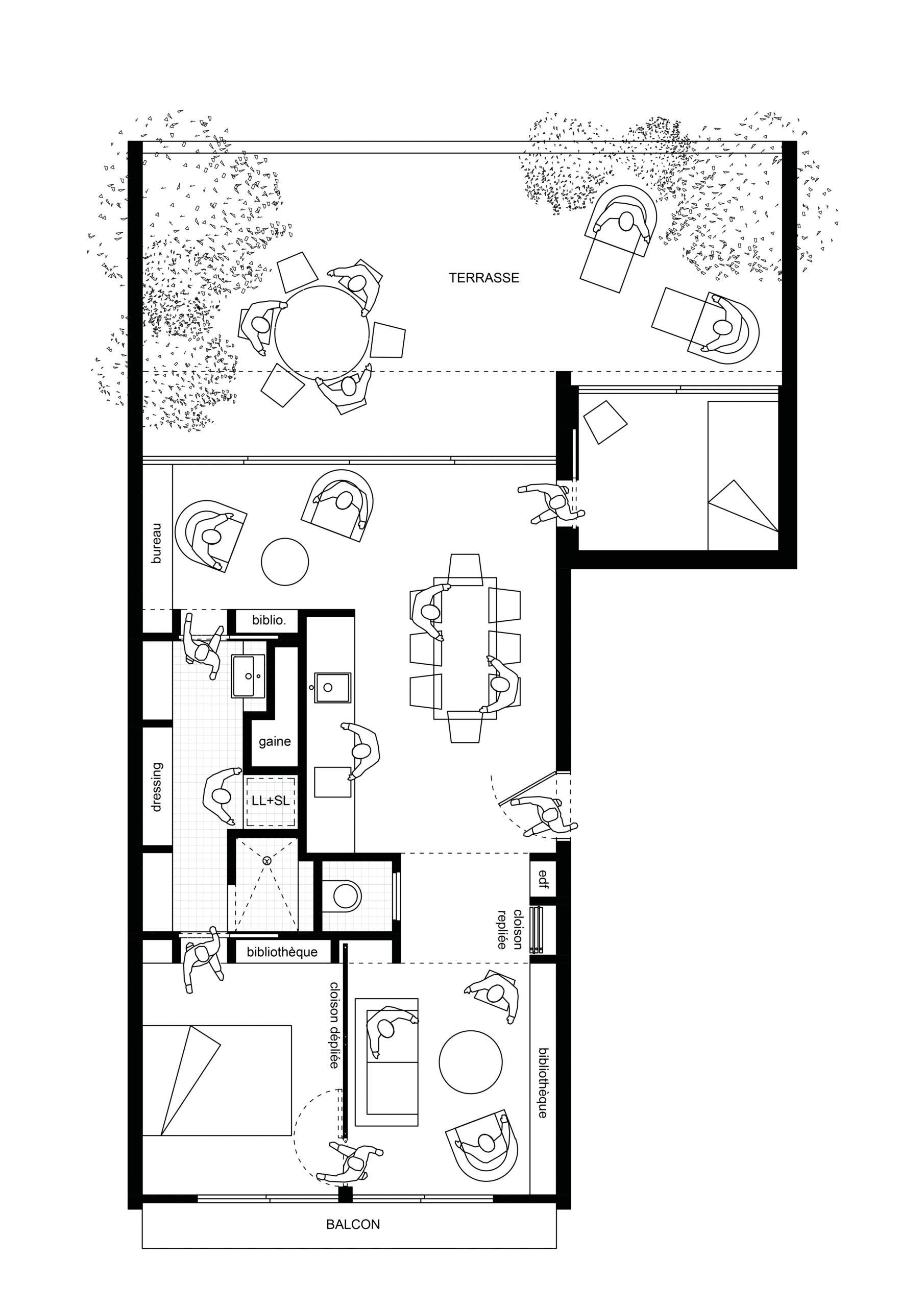
Situé au 8ᵉ étage d’un immeuble des années 1970, cet appartement traversant bénéficie de deux espaces extérieurs privés : un balcon côté cour et une terrasse côté rue, en retrait de l’alignement et invisible depuis l’espace public.
Le projet vise une amélioration qualitative du logement sans modification de sa surface ni de sa typologie. L’intervention porte à la fois sur la reconfiguration intérieure et sur la modernisation de l’enveloppe, dans le respect de l’écriture architecturale existante.
À l’intérieur, les cloisonnements sont ajustés afin de renforcer la fluidité des usages : une nouvelle ouverture relie directement le séjour au bureau, auparavant indépendant. La disposition des cloisons pliables permet désormais de moduler les espaces selon les besoins, transformant le bureau en prolongement du séjour pour des moments conviviaux ou en espace privé pour le travail et les loisirs. L’ensemble des réseaux est remis à neuf, contribuant à une mise à niveau technique du logement.
En façade, les menuiseries bois simple vitrage sont remplacées par des châssis aluminium double vitrage, conservant les formats et la teinte d’origine afin de préserver l’harmonie de l’immeuble. Côté cour, le dessin existant est intégralement maintenu. Côté terrasse, une large baie vitrée à quatre vantaux remplace l’ancien ensemble, ouvrant généreusement le séjour sur l’extérieur. La suppression des persiennes, rendue possible par l’absence de vis-à-vis et l’orientation, allège la façade sans en altérer la cohérence, d’autant plus que cette portion est invisible depuis l’espace public.
Le projet s’inscrit ainsi dans une logique de transformation discrète : optimiser le confort, la lumière et les usages, tout en respectant le caractère du bâti existant, et en offrant une modularité flexible des pièces pour s’adapter aux modes de vie contemporains.
