Terre-Saint-Blaise
Bondy (93)
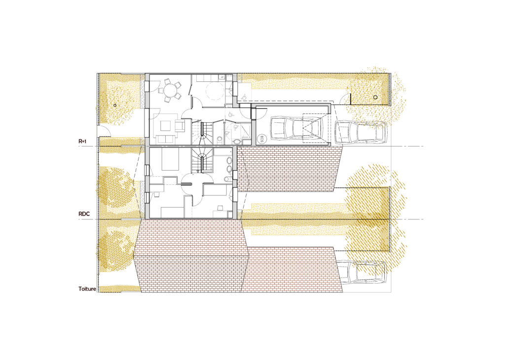
Construction de 20 maisons en accession sociale
Maître d’ouvrage : CLARM/ Immobilière 3F
Équipe : TGTFP (mandataire), GEC Ingénierie
Superficie : SHAB/ SDP = 1 568 m²/ 1 660 m²
Phase : Concours
L’opération se situe à Bondy dans le quartier Terre-Saint-Blaise en cours de renouvellement. Composé de maisons de ville, le projet rompt avec les principes urbains et l’image architecturale des grands ensembles d’origine et renoue avec l’esprit des cités-jardins du début du siècle.
Les façades s’inspirent des modèles vernaculaires du début du 20e siècle. Le débord de toiture en biseau confère un aspect contemporain aux maisons. Les matériaux utilisés sont simples et pérennes. Les toitures en tuiles rouges sont à débordement. Les descentes d’eau pluviale et les chéneaux sont en zinc. Les fenêtres sont verticales et s’ouvrent à la française. Enfin, quelques éléments de modénature, peu onéreux mais qualitatifs, rehaussent l’ensemble : plaquettes en linteau se prolongeant en frise sur les pignons, appui en briques posées sur chant, rive et cache-moineaux métalliques laqués sont autant de petites attentions aux futurs habitants.
